Landscape / SP Infocity, Gurugram

Landscape / SP Infocity, Gurugram

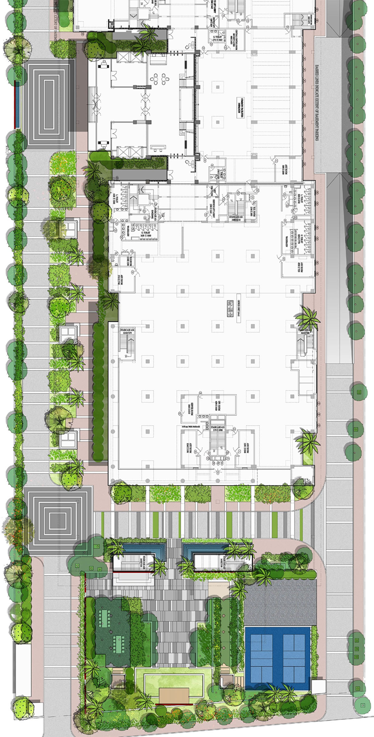
SP Infocity

Gurugram

Client: Edelweiss

Area: 6.0 acres
Status: Tendered out

This office campus has a dated appearance and minimal attention to detailing when compared with today’s experiential landscapes in emerging IT parks in Gurugram, the hub of North India’s new-age office district.

To match evolving expectations and the quality of outdoor amenities now being delivered in contemporary tech parks, SP Infocity is being upgraded comprehensively. Along with planned improvements to the interiors and façade, the landscape design proposes a state-of-the- art campus experience with crisp detailing, bespoke features, a carefully curated planting palette, and an enhanced arrival experience with outdoor amenity gardens.

Top